Gesamtauftrag Heizung, Lüftung, Sanitär, inklusive Kanalisation

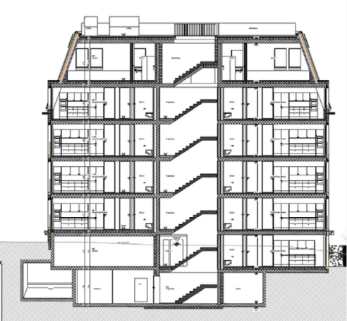
Neubau Kolumbanstrasse 15A 9016 St. Gallen

Kontrollierte Wohnraumlüftung, Luft/Wasser Wärmepumpe, Regenwassernutzung

Mehrfamilienhaus mit 11 Mietwohnungen

 

Gesamtauftrag Heizung, Lüftung, Sanitär, inklusive Kanalisation

 

Graf GU AG
9016 St. Gallen

 

Herbst 2025